• Home
  • Buy
    • Buy
    • Residential
    • Acreage Semi Rural
    • Rural
    • Vacant Land
    • Commercial
    • Investment
    • Inspections
    • Auction
    • Wishlist
    • Buying Tips
  • Rent
    • Rent
    • Residential
    • Commercial
    • Application
    • Emergency Repairs
    • Tenant Portal
    • Wish List
  • Sell
    • Sell
    • Request Appraisal
    • Sold Properties
    • Selling Tips
    • Why Sell With Us
  • Investors
    • Investors
    • Property Management You Can Trust
    • Benefits of Property Management
    • Quarterly Newsletter
    • Rental Appraisal
    • Landlord Login
  • Content
    • Content
    • Testimonials
  • About
    • About
    • Company Profile
    • Meet The Team
    • About Our Community
    • Privacy Policy
    • Careers
  • Contact

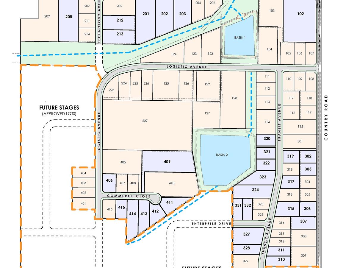
Tamworth /Stage 4 Tamworth Business Park

WESTDALE - Tamworth Business Park is Hunter Land's answer to a market in need for dedicated transport and associated use sites in North West NSW.

Contact Agent

WESTDALE - Tamworth Business Park is Hunter Land's answer to a market in need for dedicated transport and associated use sites in North West NSW.

Critically located at the junction of New Winton Road and Oxley Highway, the site is just minutes from Tamworth Regional Airport, Tamworth Regional Sale yards, and the Tamworth Intermodal Freight Hub.

Featuring:
* 16 Lots within the stage with 8 either sold or under offer.
* Remaining lot sizes starting from 2600m2
* Strategic location
* Level sites
* Lease or Purchase - plus design and construction available
* Registration expected by approximately September 2024
* Work on Stage 4 to commence approx. July 2024 - with registration of this stage around mid 2025 at present.

Contact Dan Watson on 0459 347 562 for more information

Property Features

Land Size
2600 square mtr approx.
1

Open Times

Dan Watson

Make an enquiry

Dan Watson

Licensed Real Estate Agent

  • P 0459347562

Ella Neill

Professional Assistant

  • P 0427003888
Your Details
Your Enquiry
  1. Please describe how we can be of assistance to you.

  2.  

    Would you like to join our mail list?

Submit

Share this property

  • Email a friend

  • Your Details
    Your Friend's Details
    Submit
  • Share on Facebook

  • Share on Twitter

  • Details
  • Features
  • Video
  • Map
  • Enquire
  • Share

Tamworth

/Stage 4 Tamworth Business Park

WESTDALE - Tamworth Business Park is Hunter Land's answer to a market in need for dedicated transport and associated use sites in North West NSW.

Contact Agent

WESTDALE - Tamworth Business Park is Hunter Land's answer to a market in need for dedicated transport and associated use sites in North West NSW.

Critically located at the junction of New Winton Road and Oxley Highway, the site is just minutes from Tamworth Regional Airport, Tamworth Regional Sale yards, and the Tamworth Intermodal Freight Hub.

Featuring:
* 16 Lots within the stage with 8 either sold or under offer.
* Remaining lot sizes starting from 2600m2
* Strategic location
* Level sites
* Lease or Purchase - plus design and construction available
* Registration expected by approximately September 2024
* Work on Stage 4 to commence approx. July 2024 - with registration of this stage around mid 2025 at present.

Contact Dan Watson on 0459 347 562 for more information

Property Features

  • Land Size
    2600 square mtr approx.

Make an enquiry

Dan Watson

Licensed Real Estate Agent

  • P 0459347562

Ella Neill

Professional Assistant

  • P 0427003888
Your Details
Your Enquiry
  1. Please describe how we can be of assistance to you.

  2.  

    Would you like to join our mail list?

Submit
Powered By ReNet | Privacy Policy | Disclaimer